Maker.io main logo

Creating a Charging Station for the XRP

65

2024-08-16 | By Shruti Garg

License: See Original Project 3D Printer Microcontrollers Arduino Qwiic Raspberry Pi MCU

Planning Stage

Part 1: Planning a design for the docking station.‎

One of the parts of the wireless charging project is to create a charging station that can be ‎assembled with the circuitry for the XRP to drive to and charge itself as needed. I looked at a few ‎designs to gain inspiration and figure out the best design for the XRP. The main one used for ‎inspiration was the robotic lawnmowers made by Husqvarna. Below is a picture of the docking ‎station design that I used as inspiration.

design_1

I decided to incorporate a funnel-type design so the XRP robot could drive into the docking station ‎as precisely as possible.  ‎

Part 2: Initial drawing of the design

I created rough sketches of the docking station before creating a CAD model. The initial sketch included a ‎section for the wiring and circuitry parts to go in, and then the bottom part of the docking station would ‎be where the wireless charger is connected so the robot can drive in and charge.‎

sketch_2

One issue I encountered while modeling this in CAD is that designing the charging station with too tight ‎tolerances on both sides reduces the accuracy for the robot to drive in and charge; however, since the ‎charging coils can’t be too misaligned, the position of the robot is critical for the charger to work. I ‎decided to add angled extensions on each side and reduce the width of the charging station to match ‎the exact width of the XRP, giving only .5 cm of extra space on each side.‎

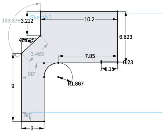
The drawing of the CAD model looks like this:‎

drawing_3

The left side is drawn out, extruded, and mirrored to the right. The idea behind this design is that ‎the arch of R 1.867 cm is the same corner dimension as the XRP. This way, the XRP will be ‎perfectly aligned with the wireless charger, allowing little room for error. The width of 7.85 cm is ‎almost half of the width of the XRP, so when the sketch is mirrored, the width will match the width ‎of the XRP with a little under 1 cm of threshold.  ‎

Extruding the parts:

Part 1: Extruding the Sketch

Extruding the left side of the piece and then mirroring it to the right is the easiest way to create the piece. ‎This will ensure that the charging station is perfectly symmetrical. With both sides extruded (in this case ‎the height is 6 cm) the part looks like this:‎

extruding_4

In this isometric view, you can see that the part has a slot-type design in the middle by the ‎opening. This is so the wireless coils on both the XRP and docking station can come together and ‎charge the robot.‎

Part 2: Shell the piece: ‎

The next step is to shell the piece so then there is a compartment for the wires to go into. In this model, ‎the shell has a thickness of .25 cm. This is done by selecting the top face to be shelled and then choosing ‎a thickness of your choice. The thickness won’t matter as long as it is thick enough to house all the wires.

shell_5

The opening on the back middle of the part is made by creating a new sketch on the back face of ‎the part and creating a rectangle. Once the rectangle is made, extrude the rectangle but select ‎remove so then there is an opening in the back of the docking station for the wires to go through. ‎‎ ‎

Part 3: Creating the drill holes.

Creating drill holes is the next important part of this model, as I would need a top piece to screw on once ‎the wiring is completed. To create these holes, the easiest way is to create another drawing on the top ‎face of the part.‎

creating_6

Each corner has a square of dimensions 2.5 x 2.5 cm, which is extruded to the bottom of the part. Then ‎there is a point created in the middle of each square which will be the drill hole. In this model, I chose to ‎do holes with a diameter of .391 cm and a depth of .25 cm. ‎

Creating the Top Part: ‎

The top part is quite easy to create once you have the base of the docking station done. The goal of the ‎top part is to make it a thin cover with the drill holes to screw together once all the circuitry is in the part. ‎The easiest way to do this is to copy and paste sketch 1 from the first part and duplicate it. Then you ‎need to create the holes by mimicking the dimensions from the previous part. ‎

top_7

Once the part is replicated, the sketch is extruded to a depth of .2 cm. The depth can be thinner or ‎thicker depending on your preferences. The holes must be in the same position as the holes in the base ‎of the docking station to ensure that both pieces can be screwed together.‎

Creating the extension parts: ‎

The next design modification involves creating angled extensions to precisely align the XRP with the ‎wireless charger side. This is done by creating a simple triangle design that can be glued together with ‎the main docking station.

extension_8

I 3D printed 2 of these to add to the docking station.‎

‎3D Prints‎

Here is a look at the parts after they are 3D printed:‎

printed_9

printed_10

printed_11

Some things to note:

Through this design, there were some complications while designing the sketch. One thing that I realized ‎is that when my sketch wasn’t defined, each side wouldn’t be symmetrical, and it took a lot of trial and ‎error for the docking station to come out correctly. Another issue was figuring out the angles of the ‎docking station, which was found to be flexible as long as the XRP fits in the docking station. Also make ‎sure to fill the compartment with something heavy, such as rocks, so the charging station doesn’t slide ‎around when the XRP is docking. One last note is that the front center of the docking station needed an ‎opening slot on top for the wires for the coil to go through so I cut one using a hobby knife, although this ‎can also just be done in CAD and saves you time to not have to cut it out later. With some of these little ‎notes, you can create your own docking station or customize this one to your liking!‎

CAD prints for the receivers

Initial Planning Stage

Since there are batteries involved when creating the wireless charger, we needed something that would ‎hold the batteries on the XRP Robot. We decided to create receivers that would hold the battery in place. ‎

The initial sketch is designed to place the batteries inside the case. The middle piece is for the coils to sit ‎on in the XRP. ‎

case_12

Once the piece is all printed, you can attach it to the XRP just like this: ‎

case_13

Download the STL files

Mfr Part # KT-PR0058-BS1MLRP
TAZ SIDEKICK LE RED EDITION
LulzBot
₩2,018,016
View More Details
Mfr Part # RM-PL0322
POLYMAKER POLYTERRA PLA FILAMENT
LulzBot
₩32,090
View More Details
Mfr Part # 22296
XRP ROBOTICS PLATFORM KIT BETA (
SparkFun Electronics
More Info
View More Details
Mfr Part # XN100
KNIFE PRECISION WITH BLADE
Apex Tool Group
₩7,797
View More Details
Mfr Part # SG3-0.5
SUPER GLUE - THICK VISCOSITY - B
Chip Quik Inc.
₩9,096
View More Details
Add all DigiKey Parts to Cart
Have questions or comments? Continue the conversation on TechForum, DigiKey's online community and technical resource.